Palmwoods Condominium 1845 views
Near MRT stations: Bedok Reservoir MRT, Kaki Bukit MRT, Bedok MRT
District: D16 - Bedok/ Upper East Coast
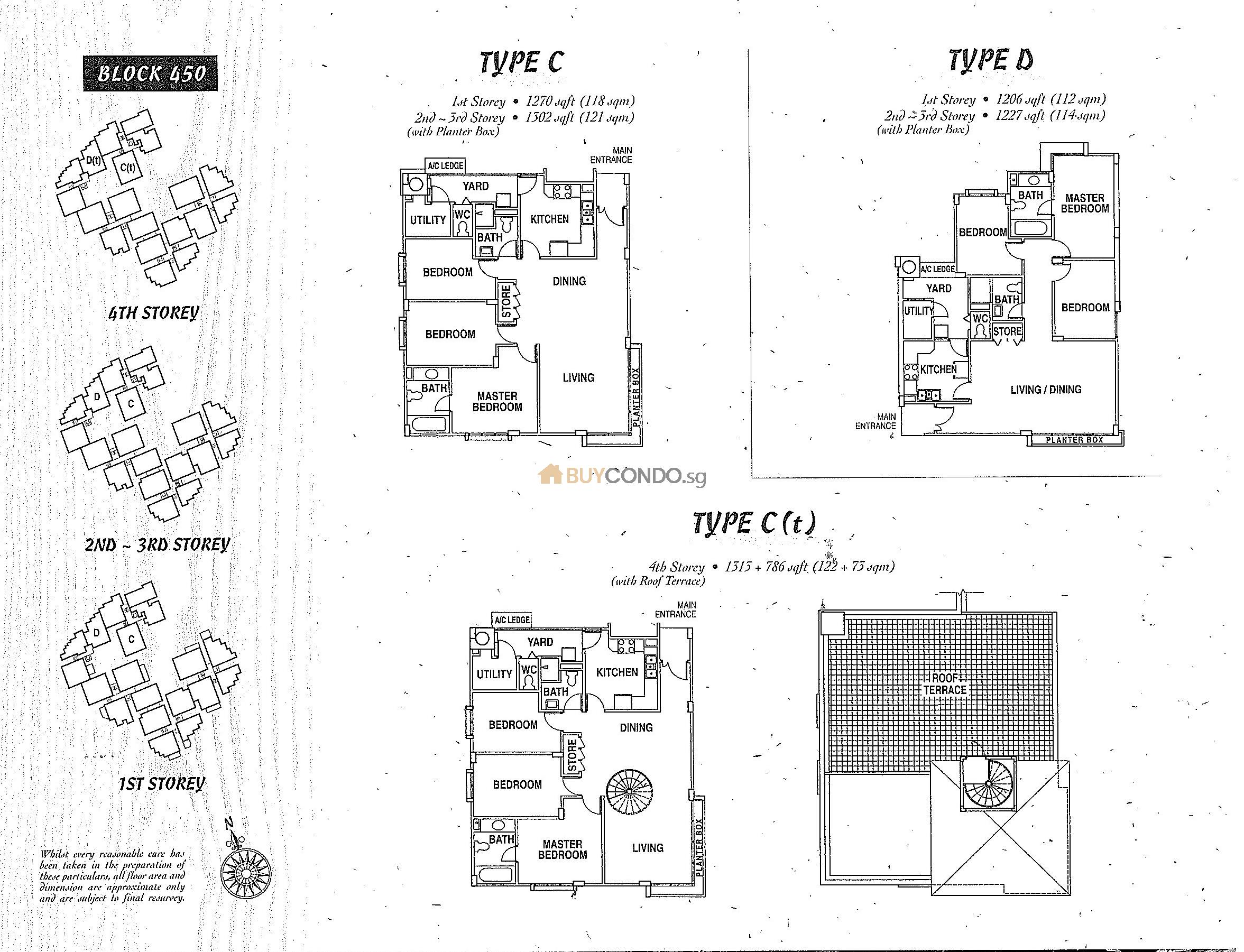
Palmwoods Condominium is a development located along 452 Upper Changi Road Singapore 487041 District 16. Expected completion in 1999. Standing 2 blocks with 87 units in total. MRT stations Bedok, Bedok Reservoir, Kaki Bukit, along with other public transportation that are within walking distance providing residents convenient access to commute around Singapore. Basic facilities include a gym, swimming pool, bbq pit, parking, 24-hour security, among many more. Nearby supermarkets and shopping areas within 1 kilometre include Sheng Siong Supermarket, Giant Express Marine Terrace, Top Plus SuperMarket, and just a short 18 minute drive away to Orchard Road which is one of Singapore’s most popular shopping area. View details at buycondo.sg
Siteplan

Siteplan

Gallery
Frequently Asked Questions
The estimated loan repayment is S$10000 / mo.
Palmwoods Condominium is located at 452 Upper Changi Road Singapore 487041.
Get the best condos with us now
You can book appointments with us at your convenience. We believe that meeting face to face will bring the best value for both of you.

Related Listings
Limau Park Condominium
D16 - Bedok/ Upper East Coast
117 Bedok North Road HDB 3 Bedroom New Gen For Sale
D16 - Bedok/ Upper East Coast
Eastwood Green Terraces
D16 - Bedok/ Upper East Coast
Eastwood Centre Condominium
D16 - Bedok/ Upper East Coast
Other Listings
River Modern: The New Benchmark of Riverside Luxury in District 9
D9 - Orchard/ River Valley
Arina East Residences: expected TOP at 2027
D15 - East Coast/ Marine Parade
Narra Residences
D23 - Dairy Farm/ Bukit Panjang/ Choa Chu Kang
Rivelle Tampines EC
D18 - Pasir Ris/ Tampines



